Paris XIIe
Nexity Seeri
1.500 m²
3,8 M €
Concours 2021
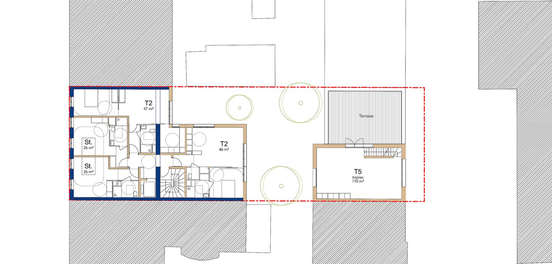
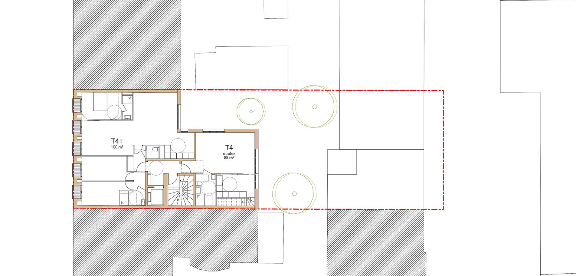
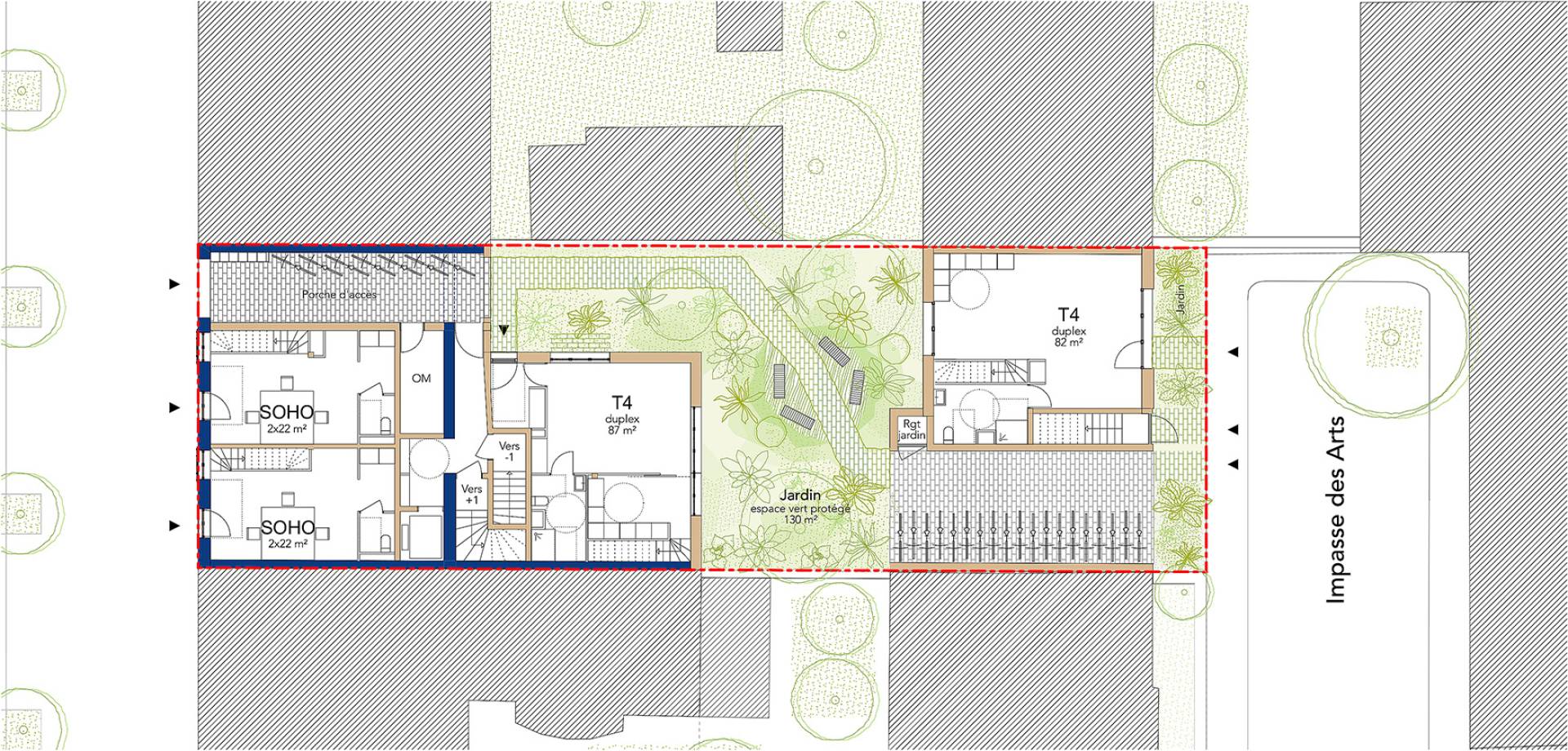
La parcelle du 24 avenue du Bel air a une position stratégique à l'échelle de l'îlot : elle fait le lien entre l'avenue et l'impasse des Arts, chacune avec son atmosphère et son gabarit, monumental d'un côté, domestique de l'autre. Cette parcelle à deux faces nécessite donc une intervention différenciée car doublement contextuelle. Elle renferme en son coeur un espace vert protégé, véritable écrin de nature intime et paisible à valoriser et à intensifier.
La réflexion sur la matière, aussi bien structurelle que de composition de la façade, est avant tout un enjeu environnemental. Pour ce faire, nous proposons d'utiliser chaque matériau à l'endroit où l'on tire au maximum parti de ses avantages.
La première intervention vise ainsi à conserver le corps principal du bâtiment existant. Sa façade est en effet un témoin de la première phase de lotissement de l'avenue du Bel air et elle participe au langage commun du quartier. C'est le bois qui est choisi pour sa légèreté (en termes de descente de charges et de facilité de mise en oeuvre par assemblages secs).
Pour la deuxième intervention, côté impasse, le choix est porté sur la pierre, matériau pérenne, local et réemployable et déjà présent sur les premiers niveaux du bâtiment voisin au sud-est. Issue de carrière francilienne, elle sera employée en structure semi-porteuse en façade et doublée d'un isolant intérieur biosourcé de type laine de chanvre. Cette écriture de pierre met en valeur chacune des maisonnée superposée comme un empilement de blocs directement issus de la carrière, conférant un caractère plus domestique propre à l'impasse.
Côté avenue, l’extension respecte l’écriture de l’existant, elle reprend les cinq travées de fenêtres, le dessin de leur assise et encadrement mais en les ancrant dans un discours contemporain : la fenêtre s’agrandit progressivement par étage (plus on s’approche du ciel et qu’on échappe à la visibilité depuis la rue mais aussi plus on a de grands logements sans recoupement contraignant de séparatifs entre fenêtres), son appui est en bois et zinc, son encadrement n’est plus décor mais usage : le cadre sort du plan de la façade, il est travaillé dans la profondeur pour créer une façade épaisse servant de prolongement extérieur. Le fond de ces petites loggias est serti de bois en voussure et volets afin de conférer un aspect précieux à la fenêtre et de mettre en valeur un matériau écologique et vertueux utilisé dans la structure, protégé des intempéries par le renfoncement.
Côté impasse et jardin, les percements prennent la forme de larges baies s’ouvrant tout entière pour donner la sensation d’une loggia intérieure. Ces baies intègrent parfois deux pièces dont la séparation est masquée derrière les montants afin de conférer à ces maisons superposées un aspect d’ateliers. Afin de conférer au bâtiment un caractère plus domestique propre à l’impasse, chaque maisonnée est mise en valeur en façade par le traitement d’une grande baie et simple ou double hauteur comme si chaque maison superposée était contenue au sein d’un même bloc de pierre dont l’empilement forme le bâtiment.
25 logements en restructuration et extension à Paris XIIe - Vue de la surélévation sur l'avenue du Bel air
25 logements en restructuration et extension à Paris XIIe - Vue de l'impasse des Arts
25 logements en restructuration et extension à Paris XIIe - Concept de préservation et d’implantation
25 logements en restructuration et extension à Paris XIIe - Vue de l'îlot de fraîcheur
25 logements en restructuration et extension à Paris XIIe - Espace vert au cœur du projet
25 logements en restructuration et extension à Paris XIIe - Typologie des fenêtres en surélévation
25 logements en restructuration et extension à Paris XIIe - Plan de rez-de-chaussée
25 logements en restructuration et extension à Paris XIIe - Plan des étages bas
25 logements en restructuration et extension à Paris XIIe - Plans des étages hauts
25 logements en restructuration et extension à Paris XIIe - Coupe transversale
25 logements en restructuration et extension à Paris XIIe - Principes constructifs