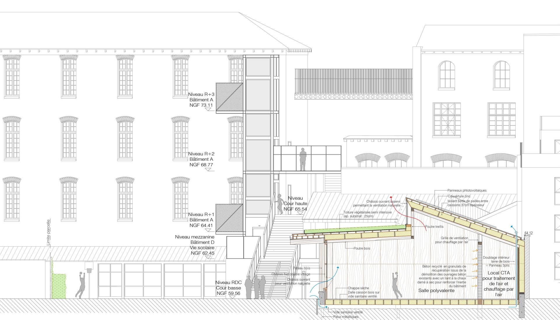
Eco-construction d'une salle polyvalente à Paris XVIIIe

Localisation :

 Collège Clemenceau, Paris XVIIIe

Maîtrise d'ouvrage :

 Ville de Paris

Surface :

 230m² neuf + 180m² réhabilitation + 680 m² cour oasis 

Budget :

 2,3 M €

Statut :

 Concours lauréat / études en cours

Equipe : Oyapock architectes / Nebbia / Make ingénierie / Ecallard / Maya / Dasom

Perspectivistes : Jeudi Wang

Restructuration bâtie et paysagère de la cour du Collège Clemenceau