Parçay-Meslay (37)
Tours Métropole Val de Loire et Ville de Parçay-Meslay
2.011 m²
3,1 M €
Concours lauréat / Chantier en cours
Equipe : Oyapock architectes, mandataire / Facéa, TCE / Venathec, acoustique / Atelier Altern, paysagiste
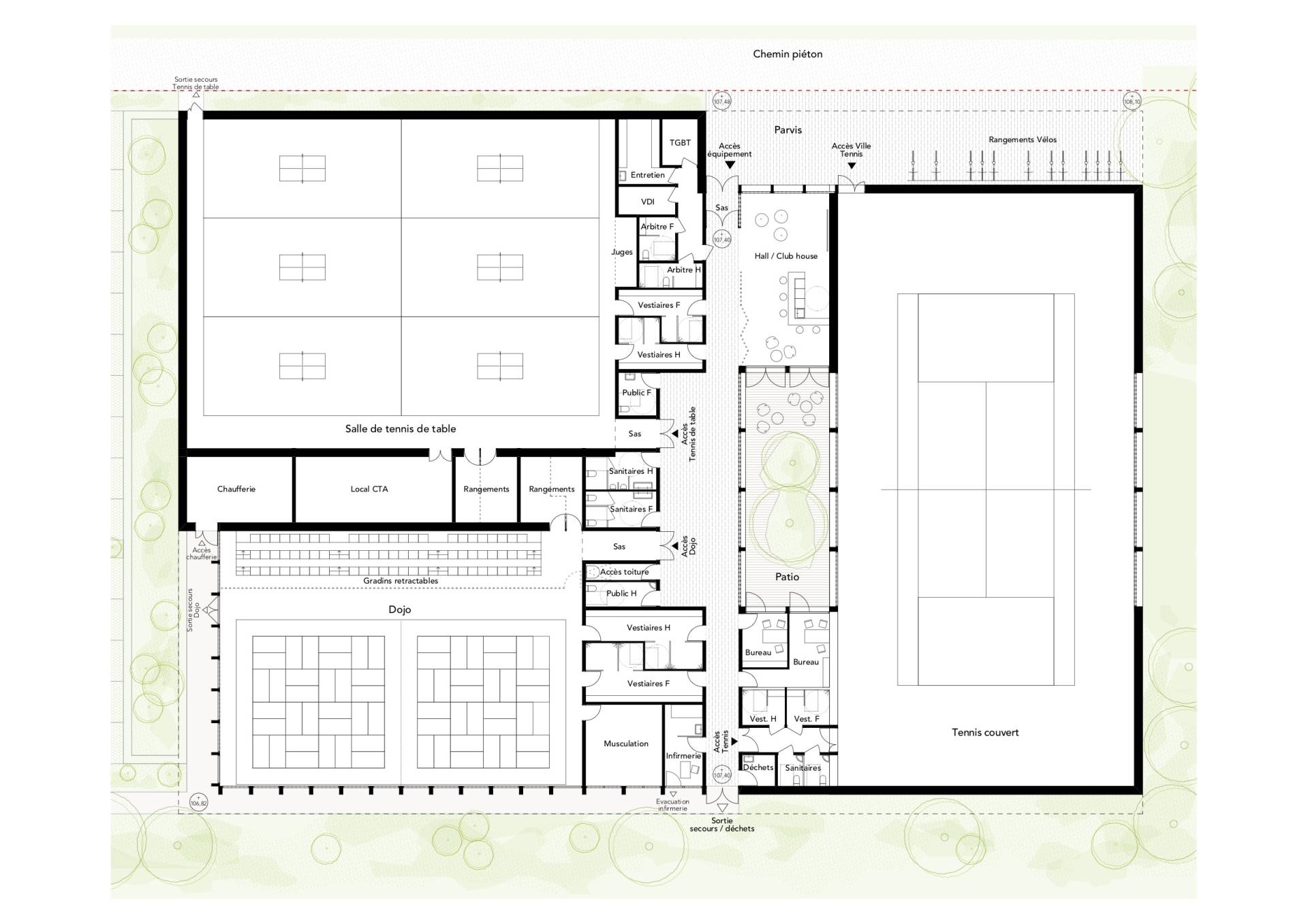
A l’image de la double échelle d’utilisation de ce nouveau complexe sportif, communale et régionale, le projet allie un statut d’équipement structurant placé en entrée de ville, et la préservation d’un caractère terrien, dans un site agricole.
Le projet est pensé comme un bâtiment unique mais composé de trois entités : il s’adapte à l’échelle de son site en mettant en valeur chaque sport qu’il renferme dans un volume propre : tennis, judo et tennis de table. Les volumes sont connectés par une large toiture basse qui contient les espaces servants. Leur traitement de façade est fonction des usages : opaque, translucide ou transparent pour protéger, apporter une lumière tamisée, ou s’ouvrir sur le paysage au gré des besoins des sports et des orientations.
Pour répondre à l’expérimentation E3C2, la majorité de la structure est réalisée en murs à ossature bois avec remplissage d’isolant en paille et finition extérieure en enduit à la chaux. L’assemblage de ces trois éléments ancre le bâtiment dans ce caractère rural propre à son site. Ces matériaux simples au caractère traditionnel et à l’empreinte carbone faible (C) assurent une enveloppe performante pour une architecture bioclimatique raisonnée (E). Ressource renouvelable, abondante en France et en particulier à proximité du site, la paille de blé permet de répondre aux objectifs environnementaux élevés propres aux bâtiments de demain tout en valorisant une production agricole locale.
Equipement sportif à Parçay-Meslay
Equipement sportif à Parçay-Meslay
Equipement sportif à Parçay-Meslay
Equipement sportif à Parçay-Meslay
Equipement sportif à Parçay-Meslay
Equipement sportif à Parçay-Meslay
Equipement sportif à Parçay-Meslay
Equipement sportif à Parçay-Meslay
Equipement sportif à Parçay-Meslay
Equipement sportif à Parçay-Meslay
Equipement sportif à Parçay-Meslay
Equipement sportif à Parçay-Meslay
Equipement sportif à Parçay-Meslay